Если цена в объявлении изменится, мы сразу сообщим вам об этом на электронную почту.
Нажимая «Подписаться», вы соглашаетесь с правилами.
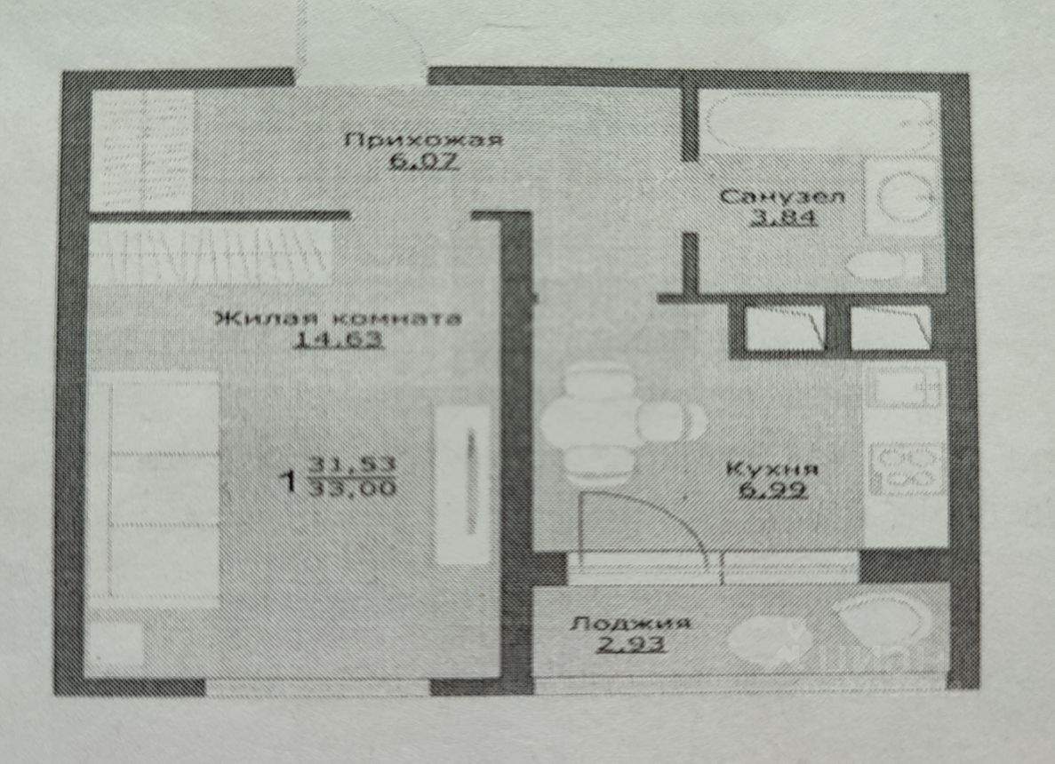
продам 1-к, Горжовицкая, 34 490 000 ₽
21 фев
Дата публикации объявления
Обн. 23 фев
Дата обновления объявления
3
Количество просмотров (+ просмотры за сегодня)
136 061 ₽/м²
Чистая продажа
Термин "Чистая продажа" означает, что в квартире никто не прописан или
есть куда выписаться и вывезти вещи. Это лучший вариант для покупателя.
Вероятность срыва сделки минимальна.
Продается однокомнатная квартира на ул.Горжовицкая стр.3, площадью 33 кв. м, расположенная на 2 этаже 9 этажного дома. Без отделки. Новостройка от жк Клевер. Дом расположен в 7 мин. от ст Абрамцево.