1-к, Октябрьская, 8а Показать на карте
Хотьково
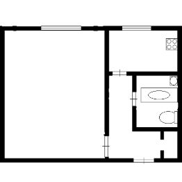
Арт. 97817953 Продается 1-комнатная, просторная квартира в тихом районе г. Хотьково Не первый этаж Не угловая Санузел раздельный. Пластиковые окна Есть помещение для бытовых вещей Парковка у дома 5 минут до станции ''Хотьково''Квартира находится на 4 этаже, неугловая, что подразумевает сохранение тепла в помещении. Очень просторная кухня, а также большая жилая комната позволит каждому найти свое личное пространство.В квартире есть отдельное помещение, которое можно использовать как кладовку, или же, как отдельную жилую комнату.Во дворе дома находится детская площадка.До станции - 5 минут на машине, до центра г.Хотьково - 10 минут. Реальному покупателю - реальный торг!Подробнее об объекте вы можете узнать по телефону, просто напишите или позвоните нам, мы всё вам расскажем и договоримся о просмотре!Наша компания входит в 3-йку лучших агентств города Сергиев Посад и наши услуги сертифицированы Гильдией риэлторов Московской области. Мы поможем: продать, купить, проверить, юридически сопроводить сделку, застраховать сделку, подобрать недвижимость, одобрить ипотеку, решить земельные вопросы, арендовать и сдать в найм, оформить налоговый вычет и правильно проконсультировать по налогам при продаже недвижимости. Будем рады сотрудничеству!
44 м2
4 / 5 этаж
Панель
- Показать контакты
- Добавить в избранное
44 м2
4 / 5 этаж
Панель
3 100 000
70 136 /м2
